I samtale med omgivelsene 

En villa på Ekeberg har utsikt og siktlinjer i alle rom

Projektnavn Vardeveien 11C
Type
Bolig & Hytte, Prosjektledelse & Gjennomføring
Program Enebolig

Sted Ekeberg, Oslo
Størrelse 215 m² BRA
År 2020-23
Bygherre Privat
Rolle Hovedprosjekt
Status Ferdigstilt
Samarbeid AlexArk, Krone Vinduer, Jo Morten Hagen AS og kjøkken fra Ask og Eng.

Foto: Magnus Berger Nordstrand

På Ekeberg ligger det en enebolig med en fasade i jernvitrolbehandlet malmfuru som stadig får en vakrere patina. Huset er skreddersydd tomten som en av tre boliger i en hageutvidelse, der det er lagt vekt på å skape private uterom og gode sammenhenger mellom planløsning og siktlinjer. Det rektangulære volumet er tilpasset den skrånende tomten med nøye plasserte vindusåpninger som gir en variasjon mellom nær- og fjernutsikt. 

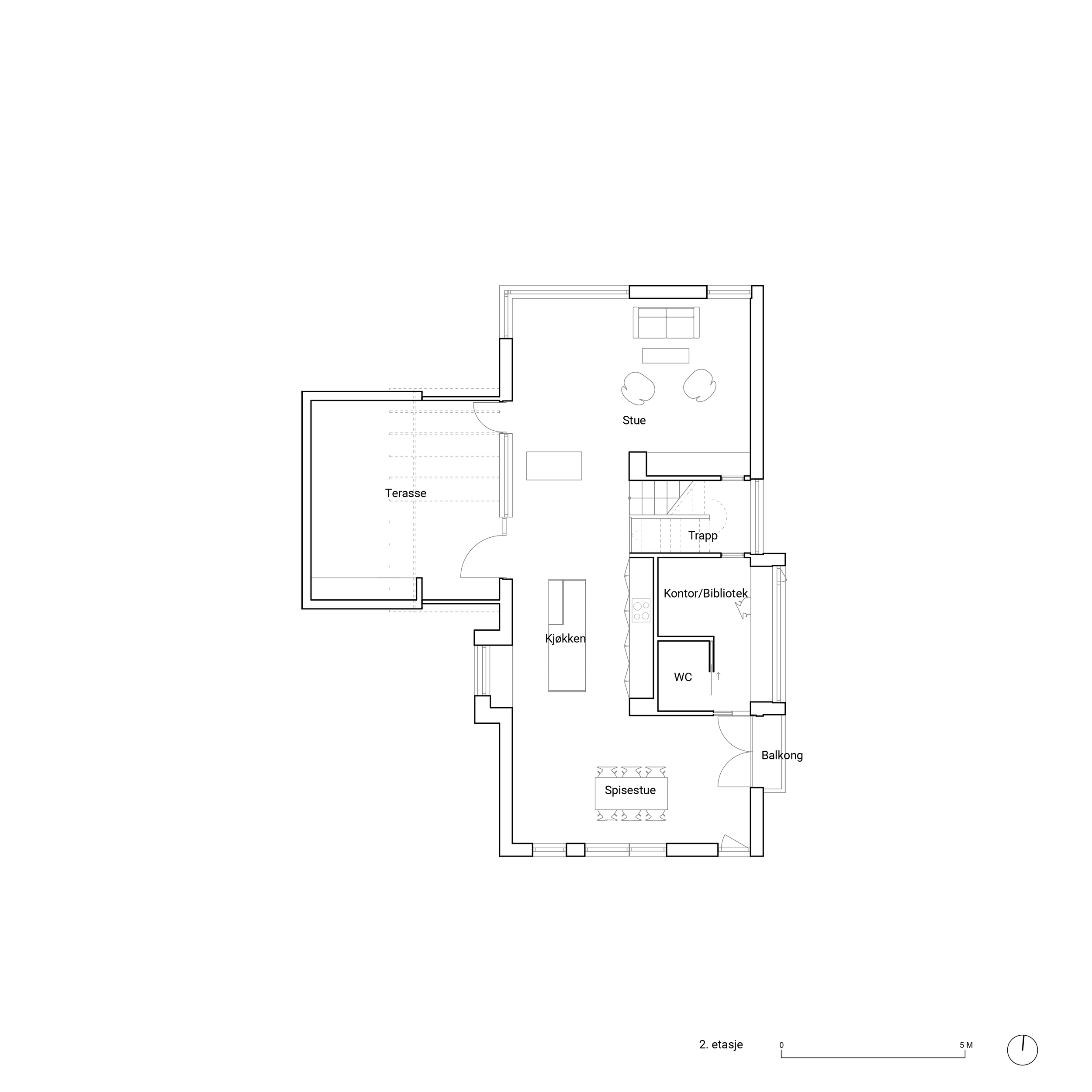
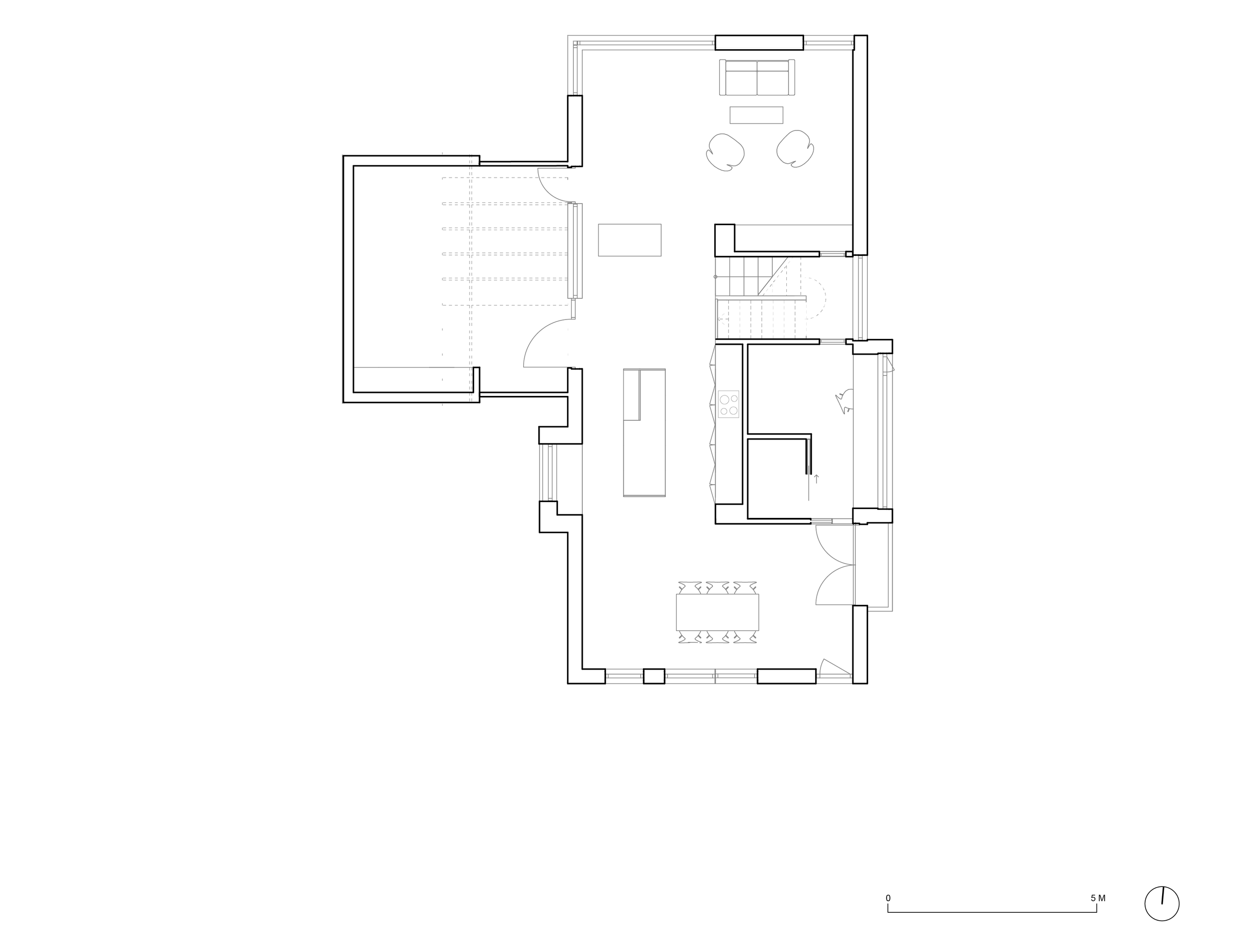
De sosiale sonene er lagt til andre etasje for å omfavne omgivelsene. Gjennom store panoramavinduer strekker oppholdsrommet seg mot utsikten over byen og marka i nord. I sør danner hagens skogkledde knaus et frodig bakteppe for spisestuen, mens kjøkkenet åpner seg mot en utenpåliggende takterrasse. Det murpussede platået som binder de tre husene på tomten sammen, strekker seg opp og blir til en terrasse i 11C. Her rammer trekronene på to store furutrær inn et luftig uterom tre meter over bakken. 

Samspill av detaljer gir en opplevelsesrikhet

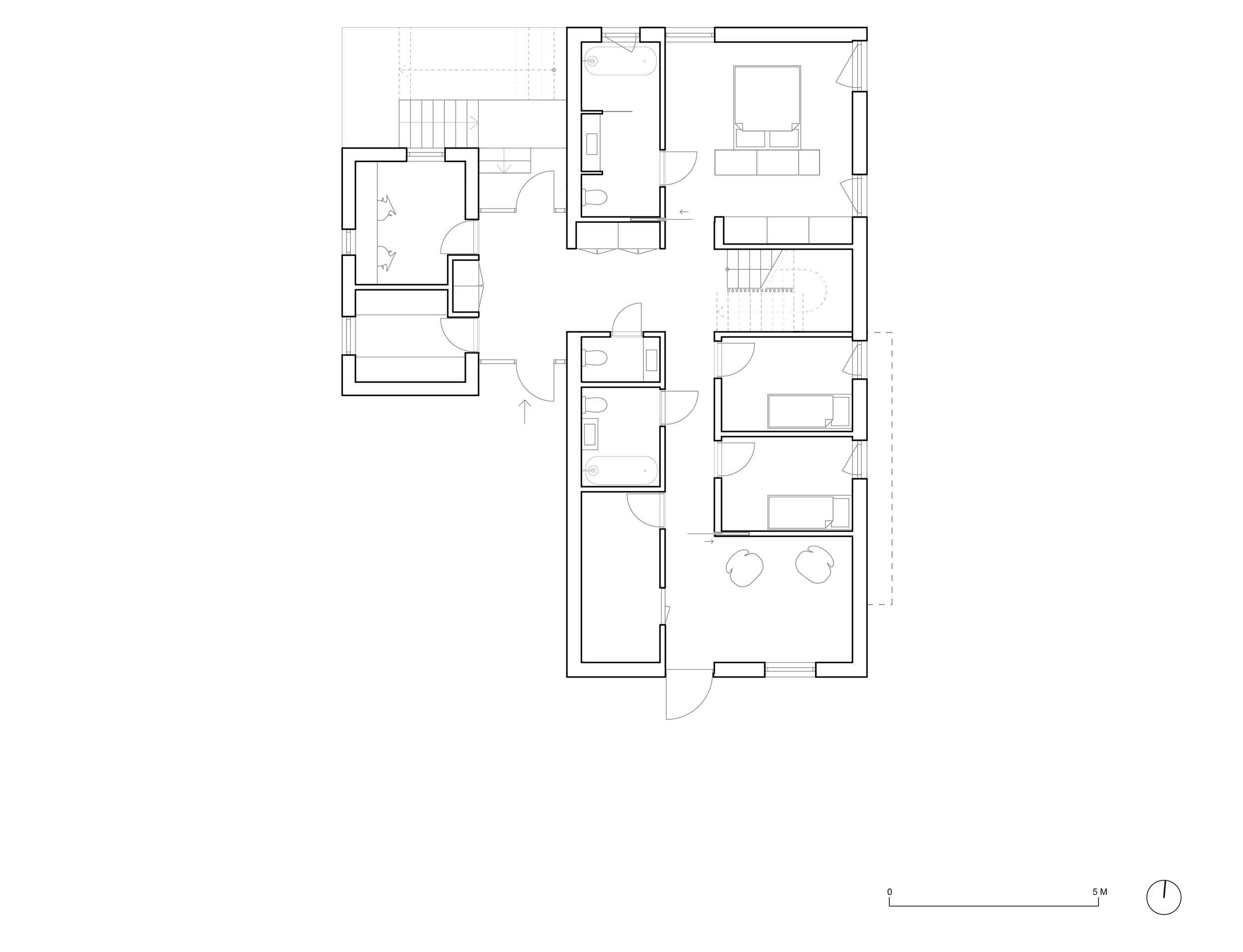
Inngangspartiet er lagt til første etasje av det pussede murelementet, med inngangsdører fra veien og hagen. Første etasje er satt av til soverom, der hovedsoverommet er adskilt fra barneavdelingen med trappen til andre etasje. De to avdelingene har fått hvert sitt bad, og barneavdelingen har i tillegg et eget lekerom. Når døren fra hovedsoverommet åpnes opp, ser man tvers igjennom underetasjen til hagen utenfor barnas lekerom i sør. 

Uansett hvor man vender blikket i det minimalistiske interiøret, ser man de nøye planlagte tredetaljene på vertikale og horisontale flater. Dette gir boligen en egen sanselighet og bidrar til å trekke naturen inn som en naturlig del av det minimalistiske interiøret. Et sentralt grep er trappeløpet som sender himmellys ned i etasjene under og binder sammen de ulike ganglinjene i huset. Midt i trappen er det lagt inn et stort vindu mot øst, der dagslyset filtreres gjennom en skreddersydd bokhylle i vindusåpningen. Dagslyset skaper et skyggespill som endrer seg gjennom døgnet og gjør vandringene opp og ned til en arkitektonisk opplevelse - hver dag.   

Forrige
Forrige

Vardeveien 11A

Neste
Neste

Det lille hotell Tollboden