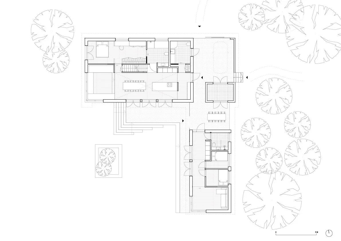
Denne enebolig på Høysandtoppen er utformet for å utnytte de gode solforholdene og naturen på tomten. Boligen på ca. 200 kvm består av 2 etasjer og 1 anneks, og er utformet med tanke på å skape gode utearealer. Tomten er omkranset av trær og skog, og prosjektet er utformet med respekt for områdets naturlige omgivelser og det er lagt stor vekt på å skape en naturlig overgang mellom inne og ute.

Høysandtoppen

Ny enebolig i Sarpsborg

Sted
Sarpsborg
Program
Enebolig
Størrelse
ca. 200 m2 BRA bolig
År
2023-
Status

Den store terrassen som ligger i tilknytning til stue og kjøkken, gir muligheter for å nyte solen og den vakre utsikten over naturen, samtidig som den er tilpasset terrenget og gir en følelse av å være en del av naturen. 


Boligen er kledd med en rød stående trekledding som gir et varmt og innbydende uttrykk. Den røde fargen på trekleddingen skaper en fin kontrast til omgivelsene og gir boligen et moderne og samtidig tradisjonelt preg.

Forrige
Forrige

Vårveien

Neste
Neste

Bærum