Kjøkken.jpg

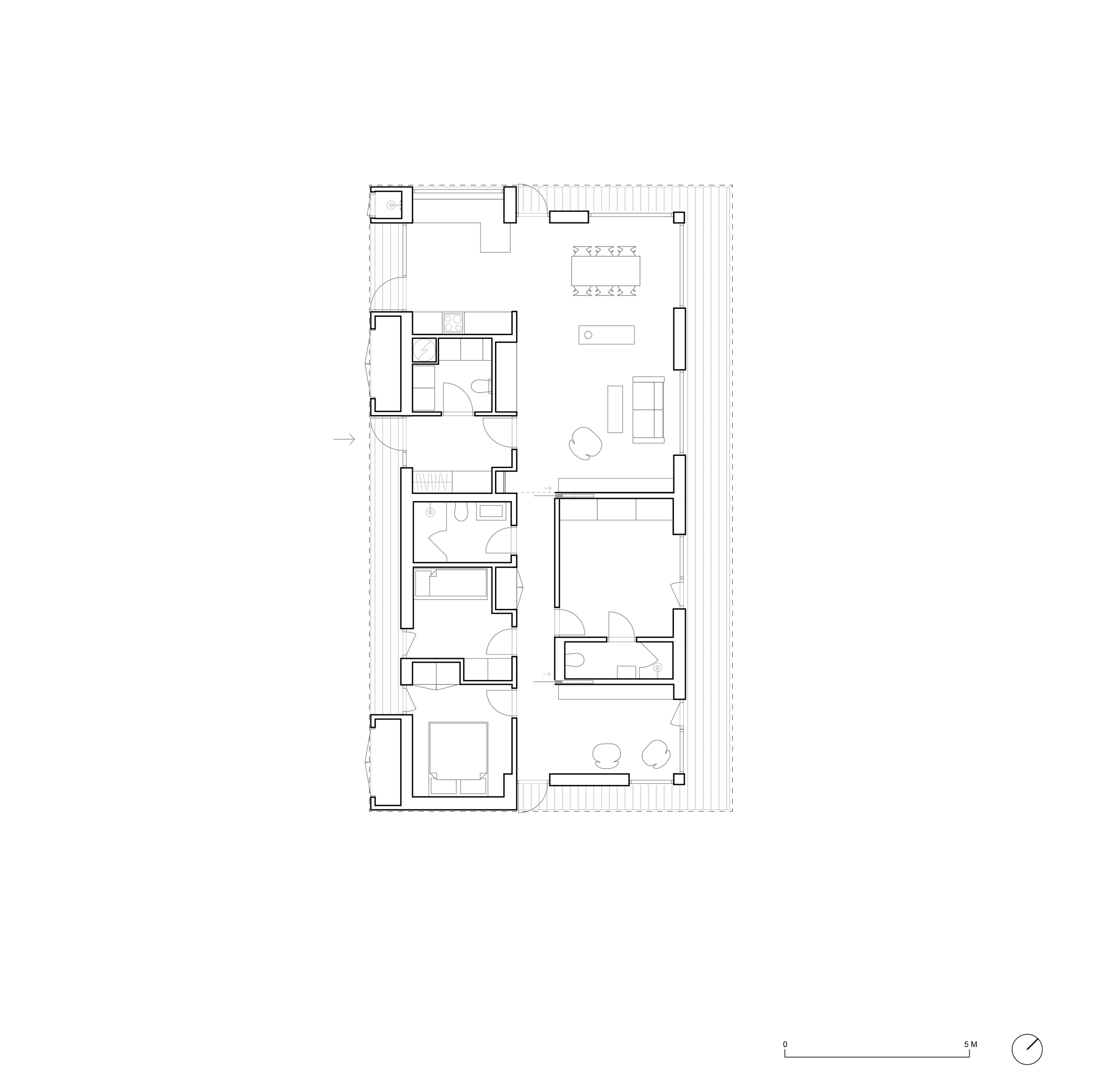
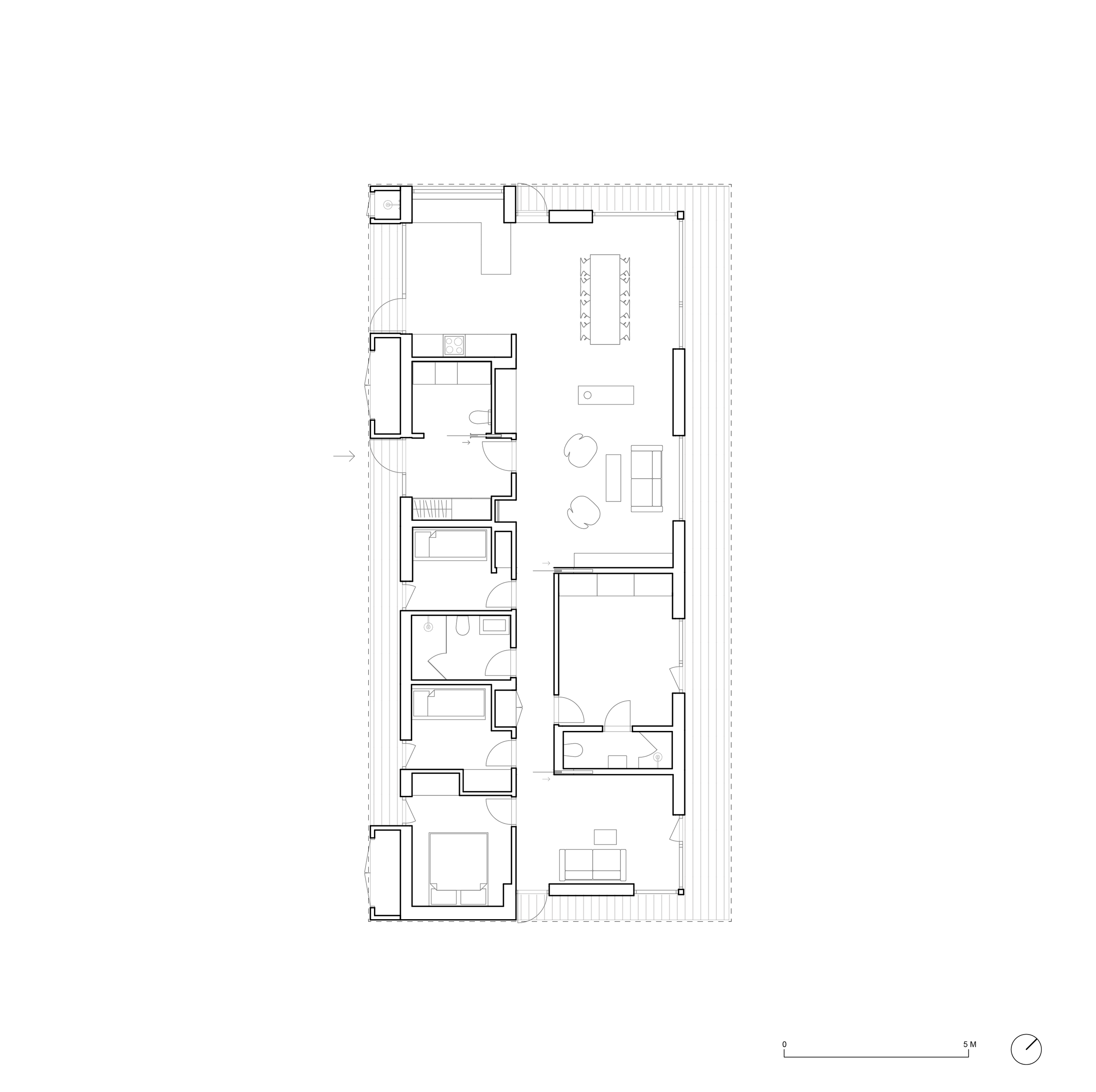
Vi arbeider med å utvikle 24 hyttetomter på Hallingskarvet.

Byggherre ønsker å utvikle tre type hytter som skiller seg ut fra mengden. Dette skal bli et unikt arkitekttegnet hytteprosjekt med et tydelig fokus på enkle, robuste, fremtidsrettede og ikke minst kostnadseffektive løsninger. Vi etterstreber rimelige og byggbare løsninger som allikevel har høy arkitektonisk kvalitet, både funksjonelt og estetisk.

Hallingskarvet

.

Sted
Hallingskarvet, Hol kommune
Program
24 hytter / 3 typer + anneks
Størrelse
tre typer helårshytter med anneks 140m2/115m2/90m2 BRA.
År
2020-
Status
Pågående - byggetrinn 1 under bygging.

Hyttetype 4

Hyttetype 3

Hyttetype 2

Forrige
Forrige

Anneks Smestad

Neste
Neste

Konkurranser