Et sjeldent smykke
Bevaring og videreføring av original funkisstil
Projektnavn H66
Type Transformasjon & Rehabilitering, Bolig & Hytte, Prosjektledelse & Gjennomføring
Program Villa
Sted Oslo
Størrelse 179 m² BRA af total 450 m²
År 2023
Bygherre Sixten Stavelin
Rolle Hovedprojekt
Status Ferdigstilt
Omtale: Aftenposten
Foto: William FairminerEn av de originale funkisvillene på Smedstad fra 1930-tallet er nennsomt transformert til en tomannsbolig med to utleieenheter og et felles hageanlegg. Villaen, som ble tegnet av Leif Egeberg i 1938, var opprinnelig bygget som en generasjonsbolig med to definerte horisontale enheter med egne innganger og oppkjørsler.
— Det fantastiske med disse villaene er at de ble bygget i materialer av høy kvalitet. Det eneste som ble gjort utvendig, var å drenere rundt huset og skifte taket, forklarer arkitekt Sixten Stavelin.
Verning på gul liste gir ingen føringer for innvendig transformasjon, men det var et ønske om å beholde så mange av de originale funkisdetaljene som mulig.
— Det som er utrolig viktig når man skal bo to familier i hver sin horisontale enhet, er å sørge for at det er lydtett. Vi tok noen tester for å se om vi kunne bevare eksisterende løsning, men man kunne snakke sammen gjennom etasjene uten telefon, sier Stavelin.
Hele gulvet mellom de to etasjene ble revet og bygget opp på nytt med trinnlydsplater, gjenbrukt stubbloftleire og fritthengende himling i lydbøyler. Dette er samme løsning som brukes på hoteller, og sikrer full lydtetthet mellom enhetene. Da gulvet først ble revet, åpnet det for ny planløsning i andre etasje der hver eneste kvadratmeter er tenkt litt som i en seilbåt. Et spesialdesignet kjøkken med en romslig øy ble plassert midt i oppholdssonen, med en intim stue i siderommet. Interiør og farger forsterker den originale funkisstilen.
For å spare kostnader er stammene både på bakveggen og kjøkkenøyen fra Ikea. På øyen er det spesiallagde fronter i eik, mens bakveggen kun er malt for å holde kostnadene nede. – Farger er billig moro, sier Sixten Stavelin.
Den originale funkisarkitekturen bidrar med solide materialer og gode grunnproporsjoner der alt fra takhøyden til vindusstørrelsene stemmer – som det fantastiske hjørnevinduet med utsikt over byen.
Rundt hjørnet for kjøkkenet ligger den intime stuen. Her er veggene malt i en okergul farge der den rå bærebjelken er eksponert som en kurios detalj.
Her kunne det vært naturlig å putte kjøkkenet inn i stua, og så hatt en lang, fin stue, men beboerne er glade i å lage mat og ville ha kjøkkenøy de kunne samles rundt.
Trappeløpet opp til leiligheten er originalt fra byggeåret, med bevarte vakre funkisdetaljer som er forsterket i bruken av maling.
På badet danner avrundingen i det origianel funkis-trappeløpet en spennende bueformasjon i veggpartiet. Det er valgt samme innredningsløsning på badet som på kjøkkenet, med spesialtegnede eikefronter til innfatning fra Ikea. På gulvet er det lagt store terrazzofliser i en varm tone som harmonerer med flisene på veggen.
Hele kjøkkenløsningen er spesialdesignet. Skilleveggen mellom kjøkkenet, badet og et av barnerommene er utnyttet som en tykk funksjonsvegg, med integrert oppbevaring og kjøkkeninnredning. Det er lagt inn lys over dørene.
Beboer ønsket en intim stue i siderommet til spisestuersonen, der en dobbelt glassdør kan åpnes ut til den romslige funkisbalkongen.
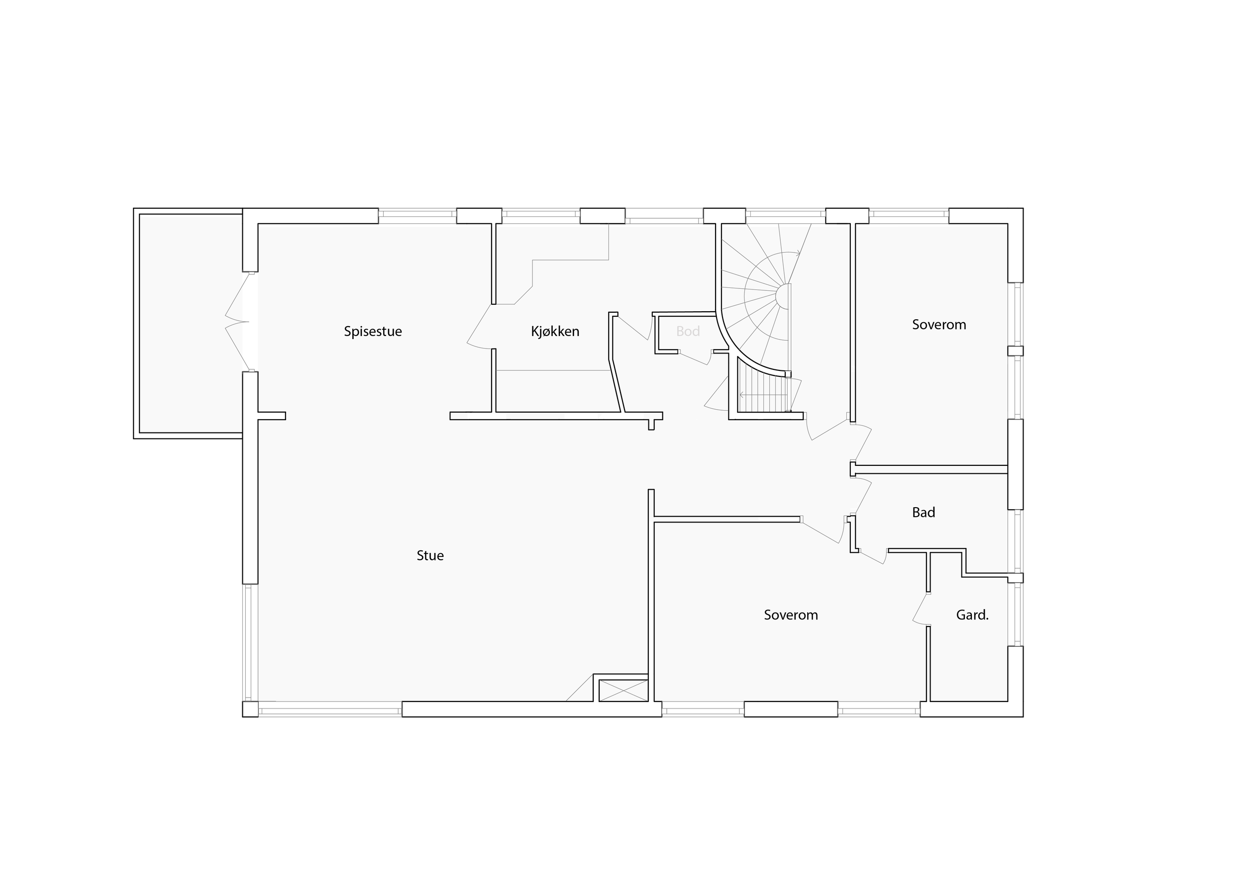
Planløsningen sånn etasjen så ut før byggeåret 1938.
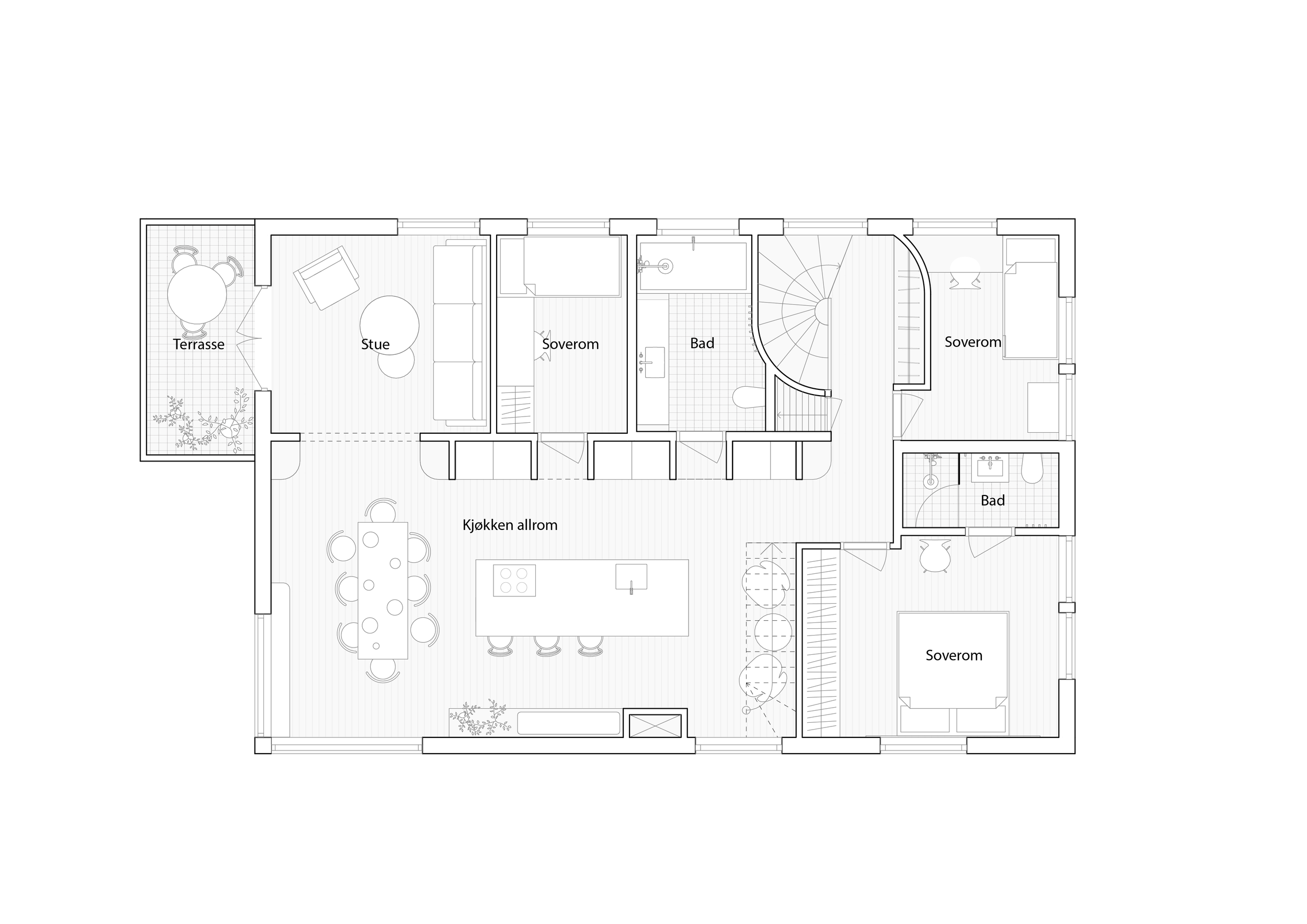
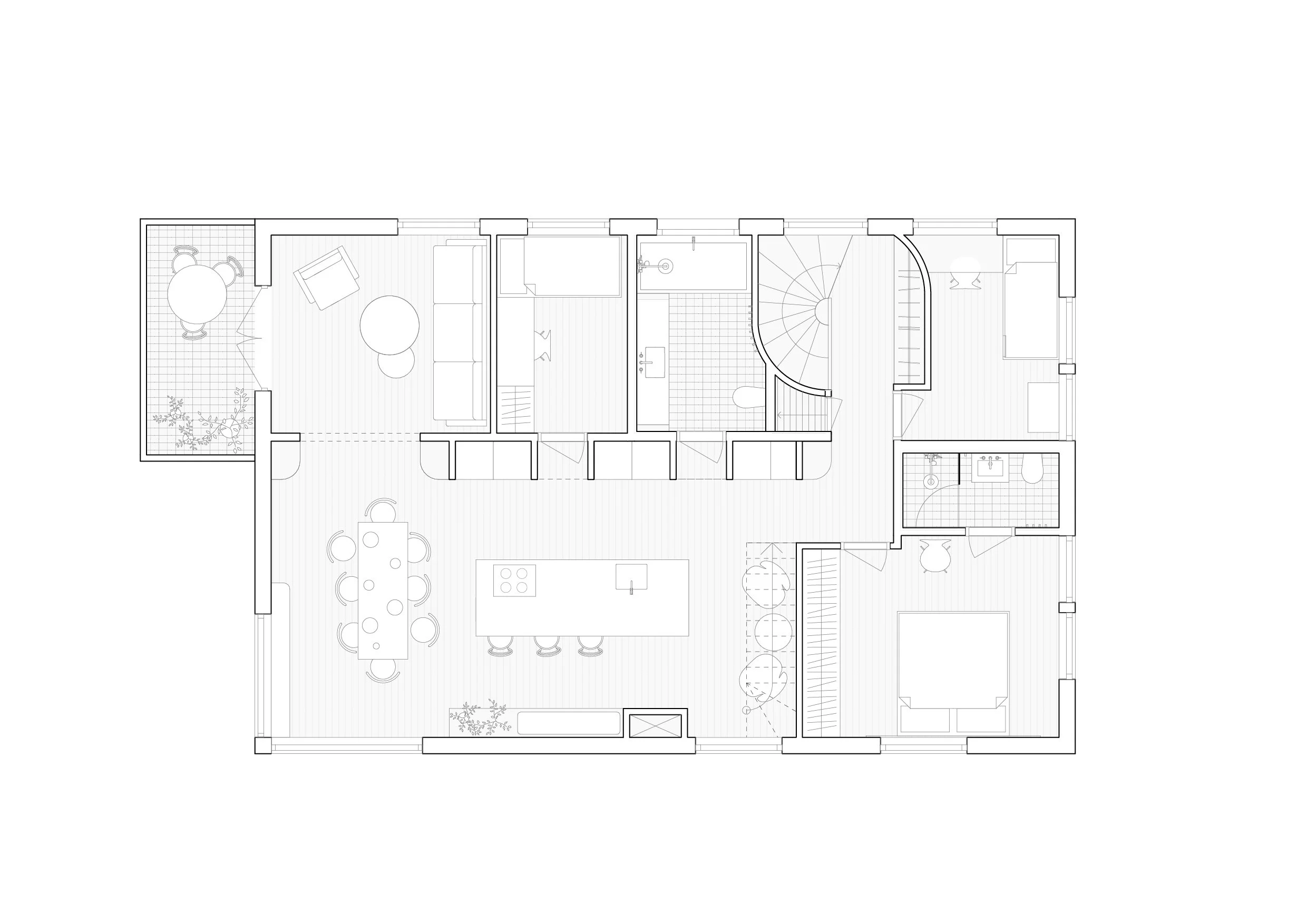
Planløsning etter renoveringen, der gulvet måtte fjernes for å etterisolere mellom etasjene, med påfølgende oppbygging av ny romløsning.