En identitetsmarkør i Risør

Historisk bygning transformeres til boutique-hotell

Projektnavn Det lille hotell Tollboden
Type
Transformasjon & Rehabilitering, Prosjektledelse & Gjennomføring
Program Hotell og restaurant

Sted Risør
Størrelse 550 m² BRA
År 2021-23
Bygherre Det Lille Hotell
Status Hovedprojekt
Samarbeid Hødnebø interiør

Oppgraderingen av den gamle Tollboden og den karakteristiske Esso-stasjonen har revitalisert en viktig del av havnområdet i Risør sentrum. Ved å etablere en sammenhengende promenade, med uteservering og rekreasjonsarealer langs kaikanten, har byens øst- og vestside blitt knyttet tettere sammen. I hjertet av denne fornyelsen ligger den historiske Tollboden, tegnet av arkitekt og murermester Johan Fredrich Lühr i 1865. Den nøkterne fasaden med de symmetriske vindusrekkene skulle signalisere tollmyndighetenes autoritet, og er i dag vernet og listeført. Det Lille Hotell, som er kjent for å restaurere flere av Risørs historiske bygninger til unike overnattingssteder, kjøpte opp den historiske bygningen i 2021, med et ønske om å etablere et lite boutique-hotell ved vannkanten. I omdannelsen til hotell, tar bygget tilbake sin rolle som identitetsmarkør i innseilingen til byen, og har blitt en viktig historieforteller, både for byens befolkning, og de sesongbaserte turistene.

Historiske rammeverk

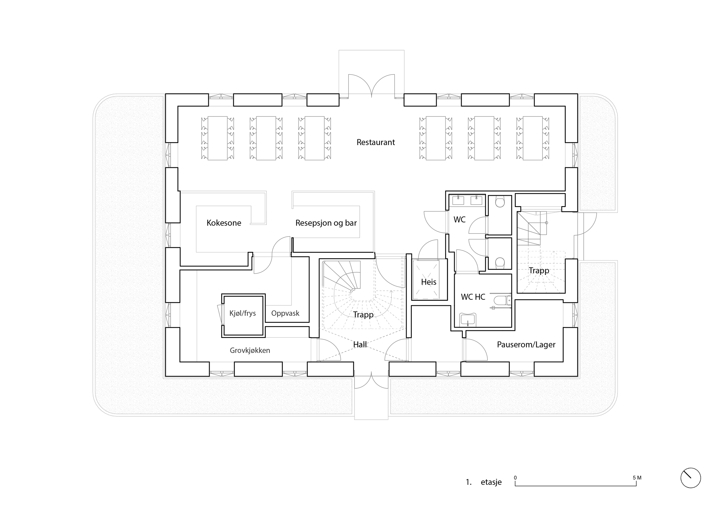
I det som var den gamle ekspedisjonshallen i første etasje, ligger i dag hotellets sosiale soner, med resepsjon og restaurant. Byggets tilstand innvendig gjorde at det meste måtte rives, med unntak av tre vegger som omkranser trappeløpet. Alt av teknisk infrastruktur ble finjustert for å imøtekomme fulle nye krav innenfor de historiske rammene.

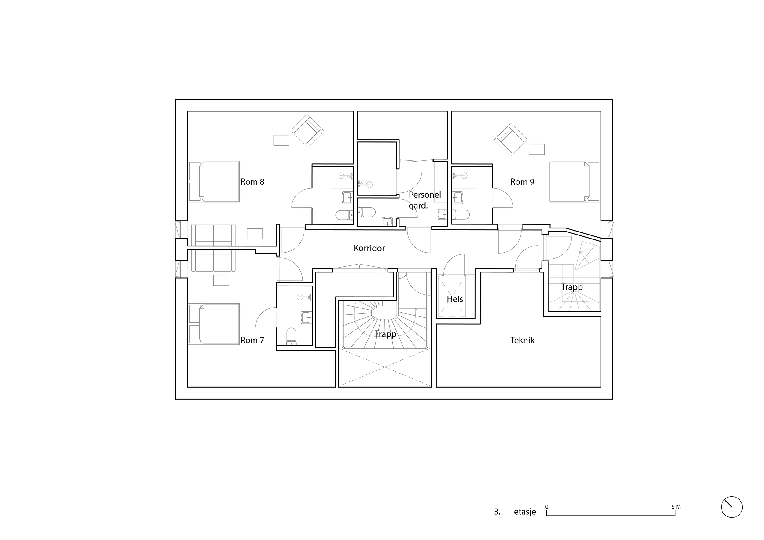
Fasaden har kun gjennomgått en nennsom restaurering med skifting av vinduer og et nytt lag med kalkpuss. Den eneste utvendige endringen, er nye takvinduer som har muliggjort etableringen av tre nye hotellrom på loftet.

Den originale hovedinngangen ble bevart og leder inn til det nye trapperommet. Inspirert av eldre arkitektur, der sentraltrappen hadde en markant betydning, er den nye trappen tegnet som et organisk element, med massive vanger som slynger seg oppover gjennom etasjene.

Skreddersydde suiter

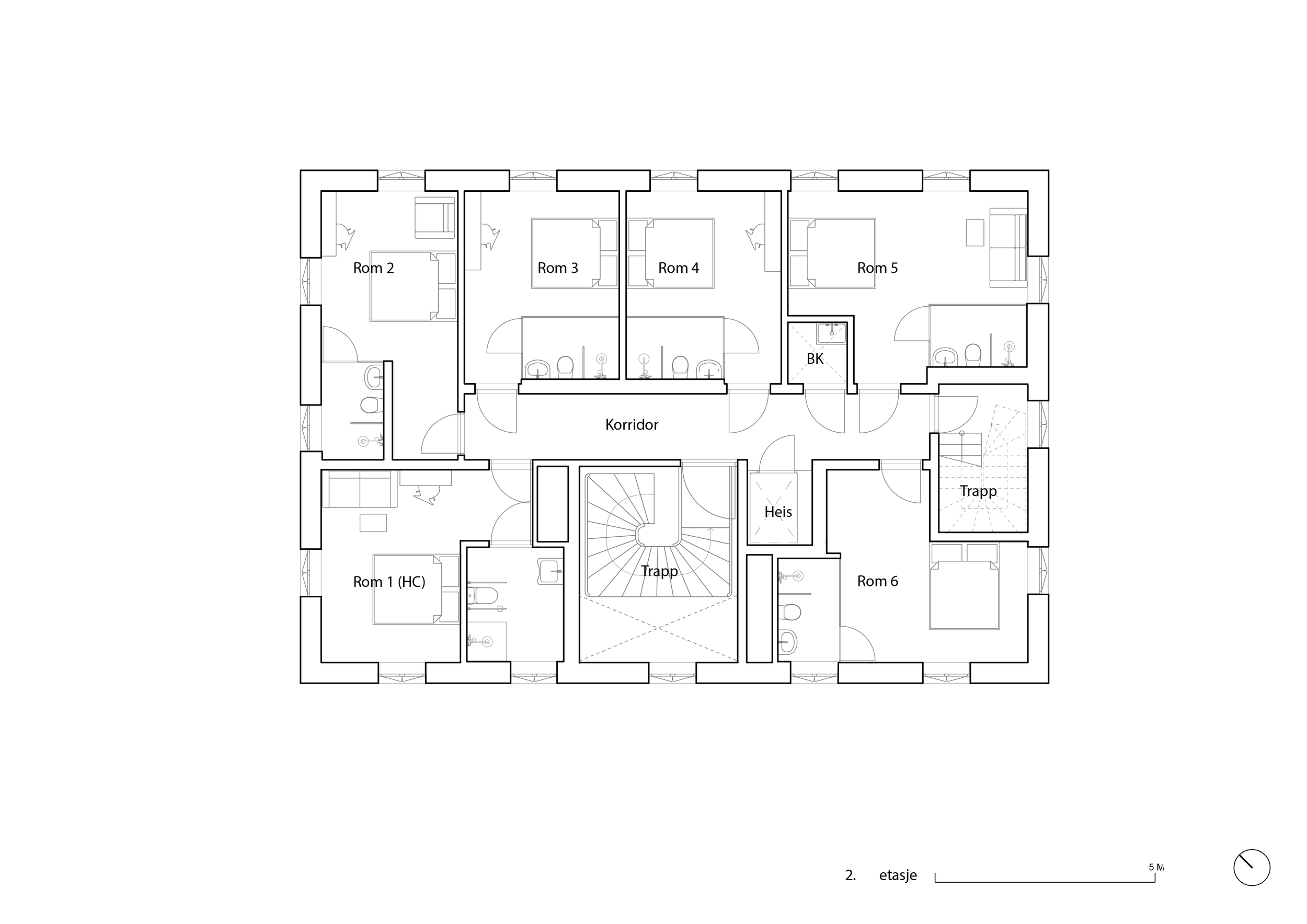
Seks av hotellets rom er lagt til andre etasje, der det i gamle dager var tollkontorer. Rommene er utformet som en serie kompakte suiter, der hvert rom er skreddersydd for å forsterke rommenes egenart. Beliggenheten ytterst på skjæret (“Skjærhue”) gir utsikt fra alle rom, der den romslige takhøyden og de høye vindusnisjene tilfører historisk karakter og ekstra luftighet.

Restauranten i første etasje fungerer som en sosial sone med et åpent kjøkkenkonsept der gjestene kan se kokken grille. Bakre del av planet rommer grovkjøkken og frys, mens resten er dedikert til spiseplasser. Restauranten har fått navnet Tollboden 1865 og tilbyr utservering på bryggekanten sommerstid.

På loftet er det tegnet inn tre ekstra rom, der takvinduer gir ekstra lysinnslipp. For å maksimere romfølelsen ytterligere, er det satt inn elektromagnetiske glassvegger mellom bad og soverom i alle suitene. Den arkitektoniske transformasjonen la føringer for fargebruk og materialvalg som har blitt videreført av Hødnebø Interiør som står for møbleringen av hotellet.

Forrige
Forrige

Vardeveien 11C

Neste
Neste

Paviljongbygget